Esta colección pone a disposición de los investigadores y personas interesadas en la arquitectura la colección de planos y dibujos de monumentos de distintos países del mundo islámico especialmente de Oriente Próximo y el Magreb: Jordania, Túnez, Argelia, Marruecos e Irán, incluyendo también algunos de Sicilia. Esta planimetría ha sido en su mayor parte elaborada con técnicas topográficas y fotogramétricas. Muchos de estos dibujos han sido publicados en distintos estudios científicos, aunque en pequeño formato. La intención de esta colección ahora disponible en esta base de datos es hacer accesible todo el material a escalas grandes y en formato digital, para que pueda aprovecharse todo el detalle y la precisión de los dibujos. La inmensa mayoría de los dibujos han sido elaborados a partir de información directa obtenida por nosotros mismos en los distintos monumentos, y principalmente mediante fotogrametría, lo que les confiere una buena calidad tanto métrica como de fidelidad a las formas y detalles. Estos dibujos son el fruto de intervenciones de restauración, proyectos de investigación, viajes de estudio o incluso viajes de turismo y en todo caso, de la curiosidad e interés por conocer la naturaleza de los edificios y dotarles de una documentación necesaria para su supervivencia en caso de que les llegara a afectar algún siniestro o intervención inadecuada. En no pocos casos representan un estado distinto del actual y constituyen ya documentos históricos.
Uno de los valores que resultan más interesantes de esta colección de dibujos es la homogeneidad de su lenguaje gráfico que facilita su lectura y comprensión, así como la comparación entre distintos ejemplos estudiados. Los dibujos presentan, en general, el estado actual de las edificaciones, aunque en algunos casos se incluyen las hipótesis de reconstrucción pues sin ellas resulta difícil muchas veces el hacerse una idea de cómo fueron en su origen. Para la confección de estas hipótesis se han tenido en cuenta otros estudios y la documentación aportada por distintos investigadores, aunque siempre reelaborada críticamente y tratando de mejorar y hacer más inteligibles la información gráfica disponible. La realización de este tipo de documentos constituye una magnífica vía de investigación y a la vez de descripción de los inmuebles, casi siempre más ilustrativos que muchas páginas que podamos escribir sobre ellos.
En la elaboración de alguno de estos dibujos colaboraron diversas personas, como José Sandoval Martín, Alejandro Almazán Peces y José Ignacio Latorre en los trabajos de Jordania, o algunos colaboradores eventuales en trabajos de prácticas. Los dibujos se presentan como archivos vectoriales en formato pdf, por haberse convertido éste en un estándar en el mundo de los archivos digitales. Visualizándolos con un software oportuno (Adobe Acrobat) pueden verse u ocultarse las capas del dibujo permitiendo simplificarlos si se quieren reproducir a escala menor. Este efecto resulta especialmente importante cuando existen ortoimágenes superpuestas a los dibujos vectoriales. En cada dibujo se indica la escala y el tamaño del papel con la que se ha generado el archivo pdf. El paso de los archivos pdf a archivos raster (jpg o tiff) es sencillo usando un editor de pdf.
Antonio Almagro
Académico numerario
Real Academia de Bellas Artes de San Fernando

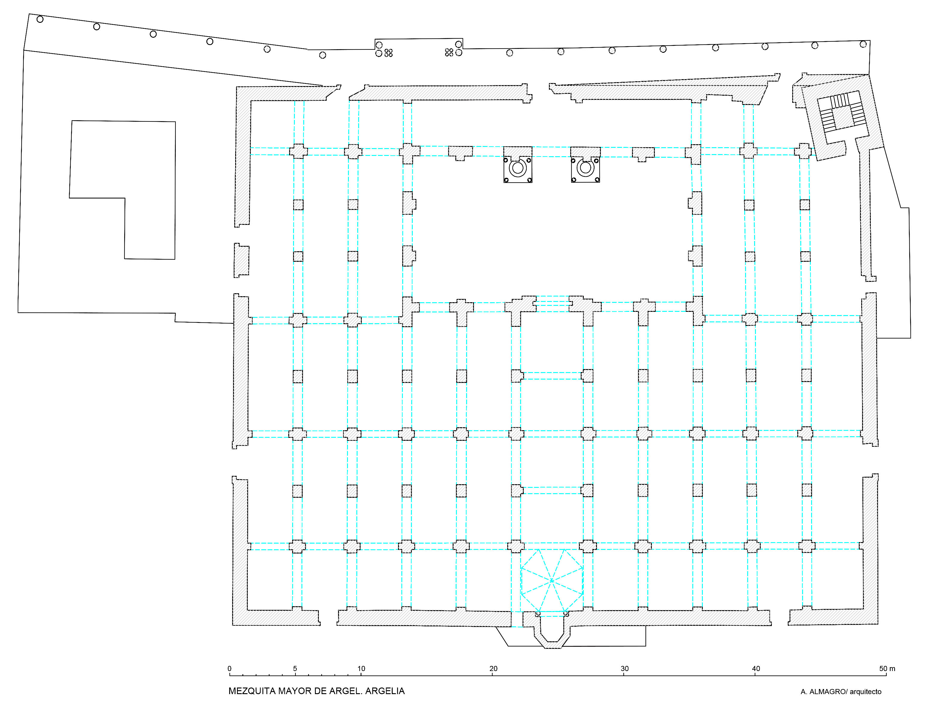
Nº Inventario: AA-621_01 • Medidas: 1/100 (A0) • Técnica:

Nº Inventario: AA-621_02 • Medidas: 1/100 (A1) • Técnica:

Nº Inventario: AA-621_03 • Medidas: 1/100 (A2) • Técnica:

Nº Inventario: AA-621_04 • Medidas: 1/100 (A2) • Técnica:

Nº Inventario: AA-621_05 • Medidas: 1/100 (A3) • Técnica:

Nº Inventario: AA-621_06 • Medidas: 1/50 (A4) • Técnica:

Nº Inventario: AA-621_07 • Medidas: 1/50 (A3) • Técnica:

Nº Inventario: AA-621_08 • Medidas: 1/50 (A3) • Técnica:

Nº Inventario: AA-621_09 • Medidas: 1/50 (A4) • Técnica:

Nº Inventario: AA-621_10 • Medidas: 1/50 (A4) • Técnica:

Nº Inventario: AA-621_11 • Medidas: 1/50 (A3) • Técnica:

Nº Inventario: AA-621_12 • Medidas: 1/50 (A4) • Técnica:

Nº Inventario: AA-621_13 • Medidas: 1/50 (A3) • Técnica:

Nº Inventario: AA-621_14 • Medidas: 1/200 (A3) • Técnica:

Nº Inventario: AA-621_15 • Medidas: 1/200 (A4) • Técnica:

Nº Inventario: AA-621_16 • Medidas: 1/200 (A3) • Técnica:

Nº Inventario: AA-621_17 • Medidas: 1/200 (A4) • Técnica:

Nº Inventario: AA-621_18 • Medidas: 1/200 (A4) • Técnica:

Nº Inventario: AA-621_19 • Medidas: 1/200 (A3) • Técnica:

Nº Inventario: AA-621_20 • Medidas: 1/200 (A3) • Técnica:

Nº Inventario: AA-621_21 • Medidas: 1/200 (A4) • Técnica:

Nº Inventario: AA-622_01 • Medidas: 1/100 (A4) • Técnica:

Nº Inventario: AA-622_02 • Medidas: 1/100 (A1) • Técnica:

Nº Inventario: AA-622_03 • Medidas: 1/100 (A1) • Técnica:

Nº Inventario: AA-622_04 • Medidas: 1/100 (A2) • Técnica:

Nº Inventario: AA-622_05 • Medidas: 1/200 (A1) • Técnica:

Nº Inventario: AA-623_01 • Medidas: 1/200 (A4) • Técnica:

Nº Inventario: AA-624_01 • Medidas: 1/200 (A3) • Técnica:

Nº Inventario: AA-624_02 • Medidas: 1/200 (A4) • Técnica:

Nº Inventario: AA-624_03 • Medidas: 1/200 (A3) • Técnica:
NOTA: Estas bases de datos son el resultado de un trabajo acumulado en diversos departamentos y en períodos diferentes. Los usuarios comprobarán que hay registros incompletos y desiguales en contenido, campos que deberán ser revisados e imágenes que iremos sustituyendo a medida que se vayan haciendo las campañas fotográficas. Todo ello será un trabajo de meses y quizá de años que deseamos no demore la accesibilidad de las personas interesadas en conocer nuestras colecciones. Rogamos nos disculpen estas deficiencias que iremos subsanando de manera escalonada y de lo cual daremos periódicamente cuenta en nuestra página web y redes sociales.
