Ponce de León Hernández, Pedro y Sandoval Martín, José

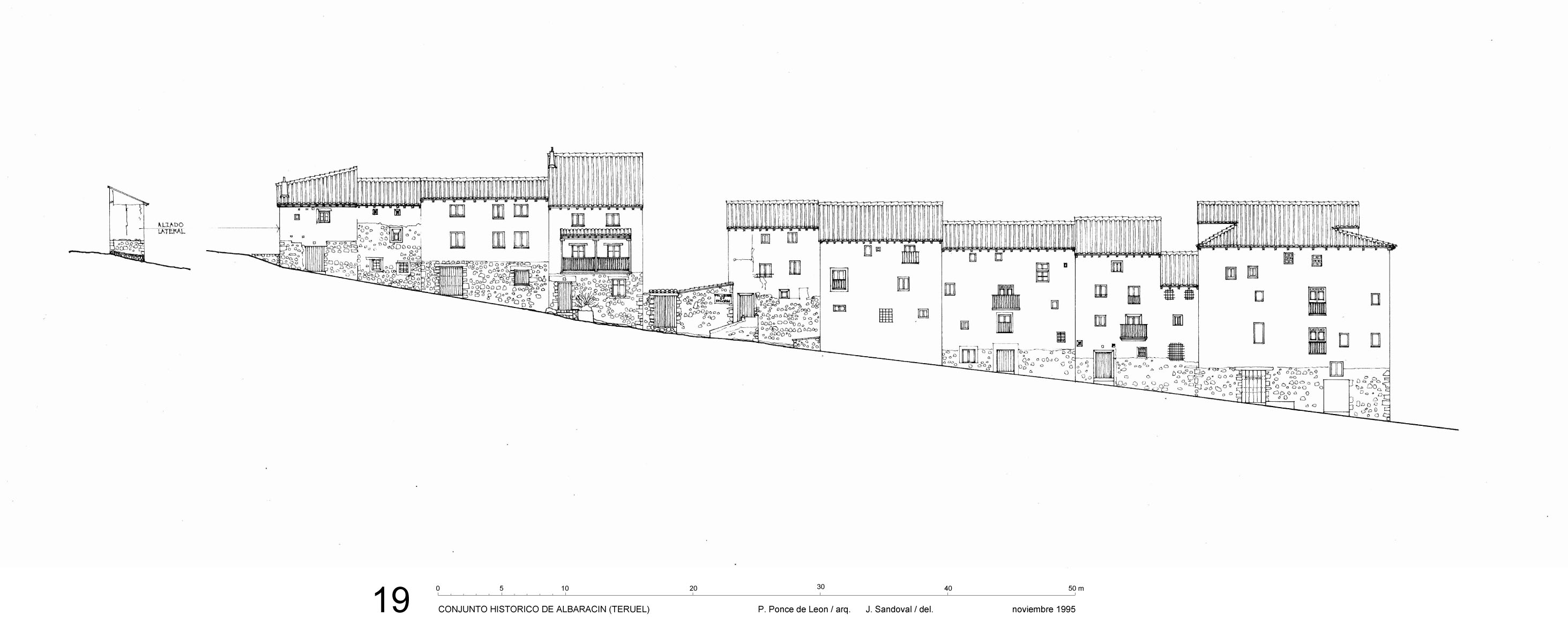
Alzados del lado sur de la calle del Carmen - Conjunto histórico de Albarracín (Teruel)

Nº Inventario: AA-050_19
Escala: 1/200 (0,30 x 0,85 m)
Procedencia: Fondo gráfico donado por el Académico D. Antonio Almagro Gorbea
Serie: Arquitectura histórica española
Pulse el botón para abrir el PDF en el navegador. Si desea ver el PDF por capas es necesario descargarlo y abrirlo con Acrobat Reader. Para ello, haga click derecho sobre el botón y pulse "Guardar enlace como".
Derechos: La reproducción de esta imagen en alguna publicación deberá hacer constar con claridad su autoría, así como la referencia de la publicación en que hubiera sido previamente difundida por sus autores. Su uso comercial queda supeditado a la expresa autorización del autor. Se autoriza su uso con fines de docencia e investigación.
Compartir esta obra

Otras obras en la colección


NOTA: Estas bases de datos son el resultado de un trabajo acumulado en diversos departamentos y en períodos diferentes. Los usuarios comprobarán que hay registros incompletos y desiguales en contenido, campos que deberán ser revisados e imágenes que iremos sustituyendo a medida que se vayan haciendo las campañas fotográficas. Todo ello será un trabajo de meses y quizá de años que deseamos no demore la accesibilidad de las personas interesadas en conocer nuestras colecciones. Rogamos nos disculpen estas deficiencias que iremos subsanando de manera escalonada y de lo cual daremos periódicamente cuenta en nuestra página web y redes sociales.

© 2017-2026. Real Academia de Bellas Artes de San Fernando. c/ Alcalá, 13. Madrid
Ayuntamiento de Madrid
Esta base de datos/portal web se ha iniciado gracias a una subvención nominativa de la Dirección General de Bibliotecas, Archivos y Museos del Ayuntamiento de Madrid con cargo a los presupuestos municipales de 2018